Für die Wohnbauzeile aus den 1940er-Jahren haben wir vom Ersatzneubau bis zur Strangsanierung unterschiedlichste Szenarien geprüft. Ein Umbau mit Erweiterung der Wohnfläche wurde als vielversprechendster Ansatz weiterverfolgt. Das Potenzial: Erhalten des Bestands und wesentliche Verbesserungen der Wohnqualität.

Die Gebäudezeile umfasst drei viergeschossige Mehrfamilienhäuser mit insgesamt 32 Wohnungen, 1944 nach Plänen von Fritz Rüegsegger gebaut. Vom Loryplatz kommend ist sie die erste Zeile eines Ensembles aus drei versetzten Gebäuden entlang der Könizstrasse. Die bestehende Erschliessung der Liegenschaft führte bisher nur seitlich den Stirnseiten des Gebäudes entlang zur Rückseite. Über den Gartenraum wurden von dort die drei Hauseingänge einzeln erschlossen.
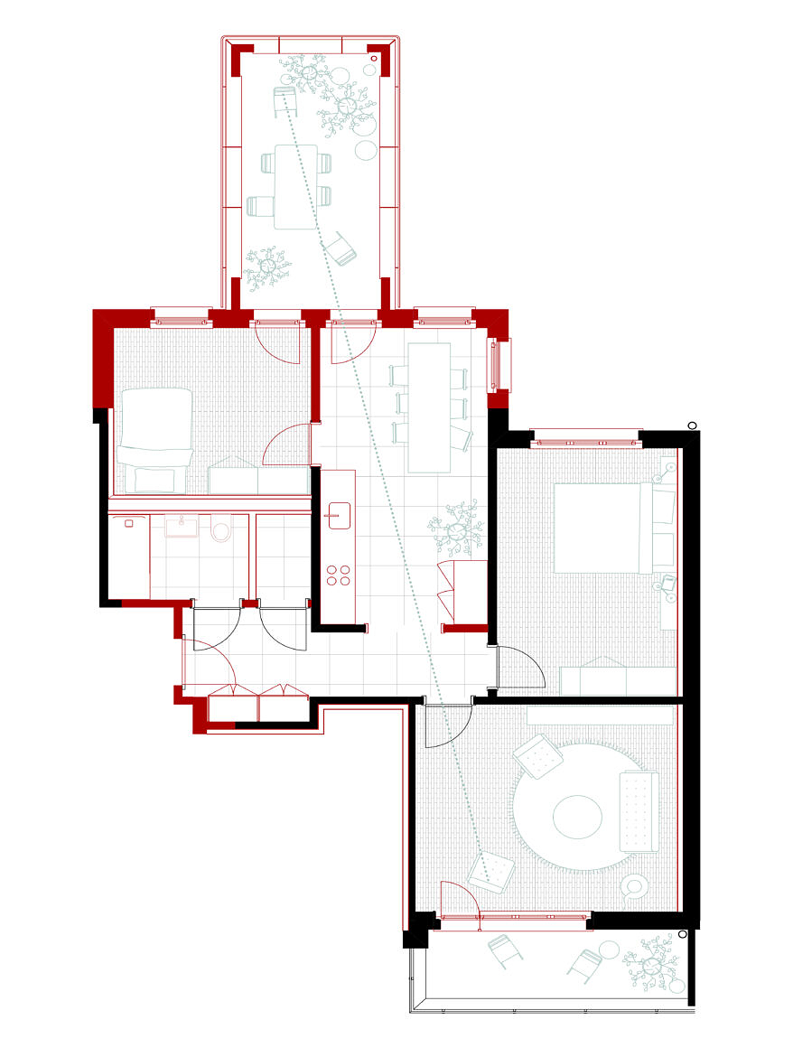
Als eine wesentliche Intervention wird neu die Liegenschaft direkt strassenseitig erschlossen. Mit der Umkehrung der Eingangssituation wird die Vorzone zwischen der Hauszeile und der Könizstrasse belebt und bildet die neue Adressierung der drei Eingänge. Die tiefe Gartenfläche im Westen wird dadurch als ruhige, grüne Oase aufgewertet, der alte Hauseingang wird für die Bewohner:innen zum direkten Ausgang in den gemeinschaftlichen Garten. Diese Umkehrung ermöglicht einen neuen, barrierefreien und grosszügigen Hauszugang mit einer Lifterschliessung zu allen Wohnungen unter Wahrung des bestehenden Treppenhauses. Abgestufte Erweiterungen auf der Gartenseite vergrössern die Wohnfläche, schaffen raumgreifende Balkonflächen und verzahnt so den Bau mit dem Gartenraum.
Die bisher mit Balkonen bespielte Strassenfassade wird neu mit Erkern rhythmisiert. Die damit zusätzlich geschaffene Wohnfläche schafft neue Ausblicke und verbindet damit den Innen- mit dem Stadtraum. Die drei ausspringenden Erker klären zudem die Adressierung ab der Könizstrasse.
Das Dachgeschoss wird neu durch die Ausbildung eines Mansardendaches als zusätzliches Wohngeschoss genutzt. Die Dachkante verläuft analog dem Bestand, wodurch sich das neue Dach in die Reihenfolge der drei Häuserzeilen eingliedert und weiterhin eine Kontinuität entlang der Könizstrasse bewahrt.
Die Wohnungsanzahl wird von 32 auf 39 erhöht, der Wohnungsmix insbesondere bei Klein- und Familienwohnungen erweitert und die Hauptnutzfläche um beinahe 30% erhöht. Das Dach wird mit PV-Panels gedeckt, ein Dämmputz verbessert die Gebäudehülle energetisch, ohne den Charakter der Zeile zu verändern. Die neuen Elemente wie Erker und Balkone verbinden sich auf selbstverständliche Weise mit dem Bestand.
Eckdaten:
– Bauherrschaft: UBS Investment Foundation 1 – AST-IS, Basel
– Baubeginn: Oktober 2023
– Bauende: Etappiert Frühling bis Sommer 2025


















