Seit Anfang 2023 bündelt der SZMD seine Kräfte an der Frankenstrasse 1 in Bümpliz, der zweite Standort in den dazugemieteten Räumen im Breitenrain wurde aufgehoben. Für die Umsetzung dieser räumlichen und betrieblichen Konzentration bauten wir zwei Geschosse um und strukturierten diese räumlich neu.

Der Bau an der Frankenstrasse 1 entstand 1953-56 durch den Berner Architekten Otto Brechbühl als Eisenbetonbau. Ende der 1970er-Jahre wurde dieser erweitert und teilweise verändert. Bereits vor unserem Umbau befanden sich im Erdgeschoss die Poststelle Bümpliz und unter dem Begriff «Familienhaus» in den oberen Geschossen weitere öffentliche Nutzungen (Gesundheitsdienst der Stadt Bern, Früherziehungsdienst und Mütter- und Väterberatung Kanton Bern).
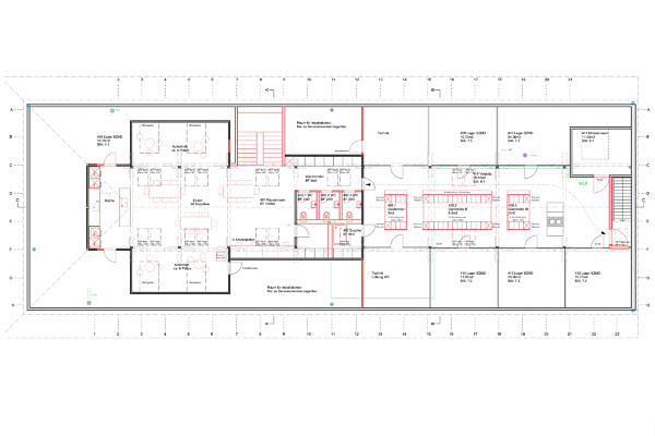
Für den SZMD haben wir die Grundrisse des Dachgeschosses und des 3. Obergeschosses neu organisiert. Was vom Bestand noch gut war, wurde geschützt und blieb drin. Wände, Türen, Einbauschränke und Bodenbeläge wurden erhalten, aufgefrischt und mit neuen, gleichartig gestalteten Elementen ergänzt. Weiter haben wir Teile aus dem Breitenrain an der Frankenstrasse wieder verwendet (Behandlungsstühle, technische Geräte, Küchengeräte, eine Glasschiebetüre und 33 Garderobenschränke). Seekiefer als Material für die neuen Einbauten prägt die Stimmung im Innern und schafft Einheit in der Vielfalt von Bestand, Re-Use und Neuem. Die Seekiefer mit ihrer warmen Holzoberfläche und der kräftigen Maserung generiert eine Identität, die im klinischen Umfeld überrascht und möglichst einfach und zugänglich wirken soll.
Im Rahmen der Sanierungsarbeiten wurden weiter alle wasserführenden Leitungen im Gebäude ersetzt, die Sanitäranlagen erneuert und diese wo möglich genderneutral ausgebaut. Für die Energiegewinnung ist die Liegenschaft nun an einen Nahwärmeverbund angeschlossen. Klebearmierungen und 10mm dicke Stahlplatten, welche auf allen Geschossen die dilatierten Betondecken statisch verbinden, machen das Gebäude nun erdbebensicher. Die Umbauarbeiten fanden teilweise unter Betrieb statt.
Eckdaten:
– Bauherrschaft: Hochbau Stadt Bern
– Planung und Realisierung: 2021-2022










