Auf einem grossen Areal entlang der Aare verfolgt die RUAG Real Estate AG die Vision, mit der Arealentwicklung «Tryber» Schritt für Schritt ein neues, durchmischtes und nachhaltiges Quartier mit grosser Nutzungsvielfalt zu entwickeln. Unser Siegerprojekt Couplage verbindet die ehemalige Speiseanstalt und die neue Patronenfabrik zu einer stimmigen Gebäude-Triplette, welche den Auftakt für das Tryberareal bildet.

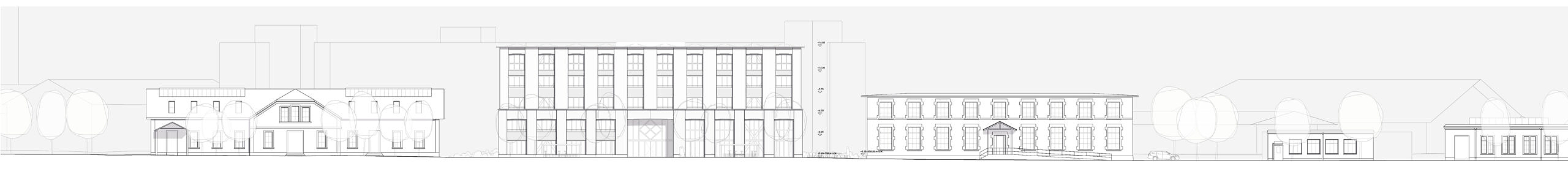
Klare, einfache und orthogonale Baukörper gruppieren sich entlang der Uttigenstrasse zu zwei Gebäude-Tripletten. Mit den bestehenden Gebäuden in der zweiten Reihe entstehen Erschliessungsräume, die unterschiedlich angeordnete Zugänge zu den Bauten ermöglichen. Die kommende Entwicklung mit dem neuen Bahnhof wird den Stellenwert des Zwischenraums zwischen Gebäuden und Bahn verändern, insbesondere auf der Ebene Fussverkehr. Die Mehrseitigkeit der Gebäude kommt dieser Entwicklung zugute. Der Neubau reiht sich mit einer analog gewählten Erschliessungstypologie in die benachbarten Bauten ein. Die unterschiedlichen Aussenräume des Neubaus werden dadurch aktiviert und belebt.
Im Bereich unseres Neubaus war die Strasse bis in die 1970er-Jahre von vier Bäumen gesäumt, diese finden noch heute Richtung Lerchenfeld ihre Fortsetzung. Vor dem Neubau werden Bäume in freier Anordnung gepflanzt und thematisieren den platzartigen Vorlandbereich. Sie stärkt so die städtebauliche Wirkung und Präsenz der neuen Patronenfabrik als Ausnahme in der Gebäudereihe. Die Zweiseitigkeit der Aussenräume prägt das gesamte Quartier. Infolge der dichteren Dienstleistungsnutzungen wird ein Dreieckspark mit hoher Aufenthaltsqualität entlang der Bahnlinie geschaffen. Strassenseitig entsteht ein platzartiger Vorbereich ausgezeichnet mit Plattenbelag und kiesigen Bereichen mit lockeren Baumpflanzungen. Direkte Fussverbindungen vom Neubau zur künftigen Bahn-Station, wie auch zum Aareuferweg erhöhen die Feinvernetzung des Gesamtareals.
Der Neubau gliedert sich in der Höhe in zwei Teile und erzeugt so zur gebauten Umgebung eine entsprechende Massstäblichkeit. Die in der Fassadengestaltung zusammengefassten ersten zwei Geschosse bilden zusammen mit den flankierenden Bestandesbauten eine stadträumliche Orientierungslinie in der Höhe. Das Bürogebäude zeichnet sich durch eine gestalterische Eigenständigkeit aus, nutzt aber das historische Vokabular aus den benachbarten Gebäuden für eine zeitgemässe Gestaltung: Repetition, Raster und Rhythmus – Industrielle Rationalität – Proportionen und unterschiedliche Auszeichnung der Geschosse. Im Innern erinnern der Stützenraster und die sichtbaren Verstrebungen des Holzbaus, die Fensterteilungen und die an Hourdisdecken erinnernde Ausführung des Lehm-Holz-Deckensystems (System Rematter®) an die kreative Atmosphäre alter Werkhallen. Das Wärmespeichervermögen der Decken sorgt für ein angenehmes Raumklima und eine natürlich regulierende Raumluftfeuchte durch den Baustoff Lehm.
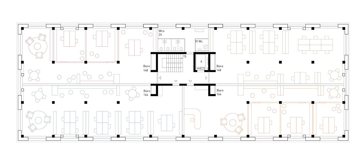
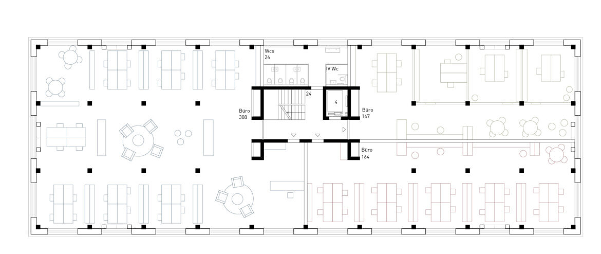
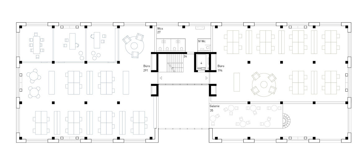
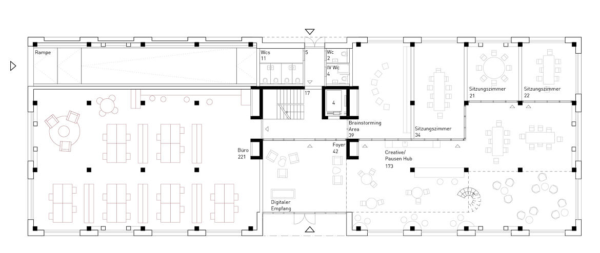
Ein zentraler Erschliessungskern mit WC-Anlagen teilt die Grundfläche in vier Bereiche. Jeder Bereich ist zweiseitig orientiert und lässt sich frei unterteilen oder mit den angrenzenden Bereichen zusammenfügen. Gebäuderaster und Raumproportionen lassen vielfältige Arbeitswelten und Möblierungskonzepte zu. Der Haupteingang als repräsentative Adresse des Neubaus befindet sich mittig an der Uttigenstrasse und dient auch als Foyer. Das zweigeschossige Foyer kann auf Grund der Anordnung des Treppenhauses und der Fluchtwege gegen Südwesten frei und ohne Einschränkung möbliert werden. Das Eingangsgeschoss strahlt in der nordwestlichen Hälfte eine Öffentlichkeit aus, die durch zweigeschossige Bereiche ablesbar und spürbar wird. Im öffentlichen Teil des Erdgeschosses befindet sich rechts vom Foyer der Creative Hub als vielfältiger Möglichkeitsraum. Es ist ein Raum der Begegnung, der sowohl intern als auch extern genutzt werden kann. Eine kleine Selbstbedienungs-Bar lädt zur Kaffee- oder Mittagspause ein. Nach Feierabend kann die Abendsonne im stimmungsvollen Aussenraum zwischen Neubau und Patronenfabrik genossen werden.
Die gebäudetechnische Infrastruktur orientiert sich an der angestrebten Flexibilität der Layoutgestaltung, kombiniert mit einer strikten Trennung der Primär- und Sekundärstruktur.
Aufgrund der Schallemissionen der Bahn wird eine mechanische Luftversorgung sämtlicher Zonen vorgesehen. Dabei werden die Bürobereiche zentral über ein turbulentarmes Zuluftsystem mit ergänzender Abluftstelle versorgt. Das innovative Konzept sorgt für eine deutliche Reduktion des horizontalen Installationsvolumens. Bei einer möglichen Unterteilung der Bürobereiche wird das Konzept mit lokalen Verbundlüftern im Push&Pull-Prinzip erweitert. Die lufttechnische Aufbereitung als zentrale Einheit wird auf der grosszügigen Dachfläche verortet, was zu kompakten Installationswegen und schlanken Systemstrukturen führt.
Eckdaten:
– Auslober: RUAG Real Estate AG
– Auftrag: Projektwettbewerb auf Einladung
Zusammenarbeit mit:
– Landschaft: Weber + Brönnimann Landschaftsarchitekten AG
– Ingenieurwesen Holzbau: Timbatec Holzbauingenieure Schweiz AG
– Ingenieurwesen Massivbau: WAM Planer und Ingenieure AG
– Haustechnik: Anima Engineering AG
– Kunst: Dominik Stauch
– Verkehrsplanung: Kontextplan
– Visualisierungen: VINN GmbH












