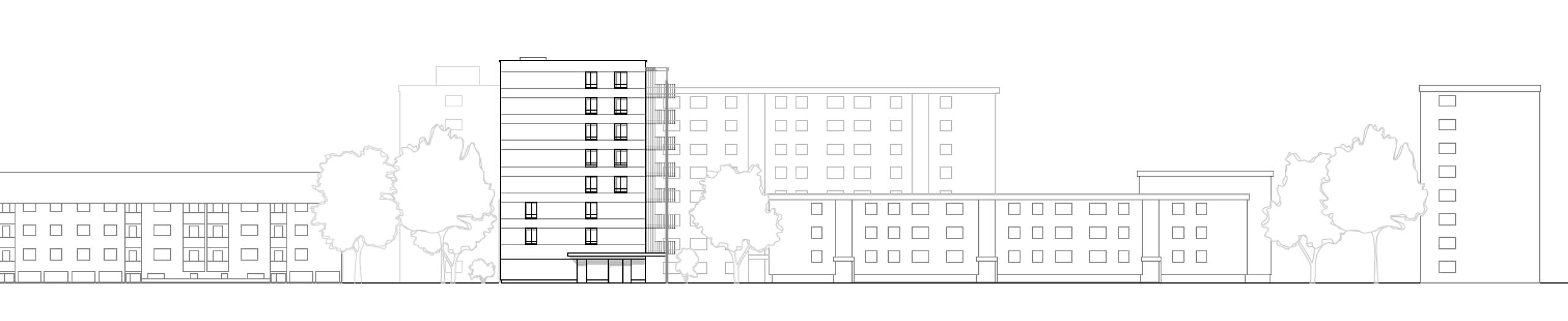
Ein acht- und dreigeschossiger Neubau in Hybridbauweise erweitert die bestehende Genossenschaftssiedlung aus den 1970er-Jahren mit 27 zusätzlichen Wohnungen. Im Erdgeschoss entstehen Gemeinschafts- und Gewerbeflächen und im Hof anstelle des heutigen Parkplatzes vielfältige Aussenräume für alle Bewohner*innen.

Die Siedlung Nünenen/Schönau wurde 1968-1972 als modernes Wohnquartier mit drei-, vier- und achtgeschossigen Bauten erstellt. Der Teil der Bau- und Wohngenossenschaft BWG Nünenen umfasst heute 142 Wohnungen mit einem Schwergewicht auf 3.5-Zi-Wohnungen. Der Neubau ergänzt das Wohnungsangebot um 27 Wohnungen mit der Absicht, einerseits günstigen Wohnraum für Familien zu ermöglichen. Anderseits können ältere Bewohner*innen der Siedlung von einer bestehenden, grösseren Wohnung innerhalb der Siedlung umziehen und von der der Hindernisfreiheit der Neubauwohnungen profitieren.
Für die Erweiterung wird einzig ein eingeschossiger, sanierungsbedürftiger Gewerbebau abgebrochen. Die Erweiterung der Siedlung entspricht somit einer konsequenten inneren Verdichtung, ohne dafür bestehenden, günstigen Wohnraum zu vernichten. Auch müssen auf Grund der bestehenden Einstellhalle, welche unterhalb des neuen Hofs liegt, keine zusätzlichen und kostenintensiven Einstellhallenplätze erstellt werden. Baurechtlich ermöglicht eine neue Überbauungsordnung die Umsetzung des Wettbewerbserfolgs.
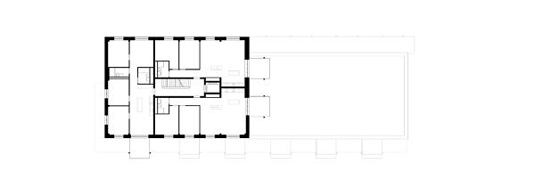
Der achtgeschossige Gebäudeteil an der Pestalozzistrasse markiert den Hauptzugang zur Siedlung, der neu über den Innenhof führt. Wo heute noch Parkplätze sind, entsteht ein neuer Aussenraum für alle. Das Erdgeschoss des Neubaus orientiert sich zum neuen Zugangsweg und zum gemeinsamen Hof. Eine flexible Gewerbefläche befindet sich direkt an der Pestalozzistrasse. Das neue Siedlungs-Bistrot belebt den Hof und kann mit dem angrenzenden Gemeinschaftsraum und der vorgesehenen kleinen Kita kombiniert werden.
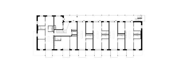
Die Erschliessung der Wohnungen ist ein Hybrid aus Laubengang und Punkterschliessung. Beim dreigeschossigen Gebäudeteil führt auf der Ostseite entlang dem Quartierweg ein Laubengang mit Aussentreppe zu den Wohnungen im 1. und 2. Obergeschoss. Die Wohnungen im achtgeschossigen Kopf werden durch ein Treppenhaus mit Lift erschlossen, welches jeweils auch zum Laubengang führt. Es entsteht eine spannende Erschliessungsfigur, welche im Erdgeschoss hofseitig an den neuen Siedlungszugang und rückseitig an den Quartierweg angebunden ist. Vom Laubengang her sind auch drei Ateliers zugänglich, welche als Joker- oder Ferienzimmer von allen Siedlungsbewohner*innen dazu gemietet werden können.
Der Neubau ist in Hybridbauweise erstellt: Betonstützen um einen Betonkern (Erdbebensicherheit) tragen die Betondecken (Schallschutz). Die Fassaden werden mit vorfabrizierten Holzelementen ausgefacht (optimierte Bauzeit) und mit Welleternit verkleidet. Balkone und Laubengang sind als Stahl-/Betonkonstruktion vorgehängt. Die Einfachheit der Konstruktion ist im Materialkonzept erkennbar. Wo Beton verwendet wird, wird dieser sichtbar gezeigt und mit einem einfachen Eichenparkett, abgeriebenen Leichtbauwänden und Einbaumöbel aus Seekiefer kombiniert. Das Gebäude wird im Minergie-P-Standard erstellt und entspricht den Eco-Anforderungen. Ein siedlungseigener Wärmeverbund mit Grundwasser-Wärmepumpe, kombiniert mit PV-Anlagen auf allen Dächern und dem Zusammenschluss zum Eigenverbrauch (ZEV), deckt einen hohen Anteil des Energieverbrauchs der Siedlung mit erneuerbarer Energie ab.
-Bauherrschaft: Bau- und Wohngenossenschaft BWG Nünenen, Thun
-Auftrag: Studienauftrag im Einladungsverfahren, 1. Rang, 2019
-Landschaftsarchitektur: Klötzli Friedli Landschaftsarchitekten Bern



















